- Объект: индивидуальный жилой дом
- Задача: сделать архитектурный проект индивидуального жилого дома
- Площадь: 220 м.кв.
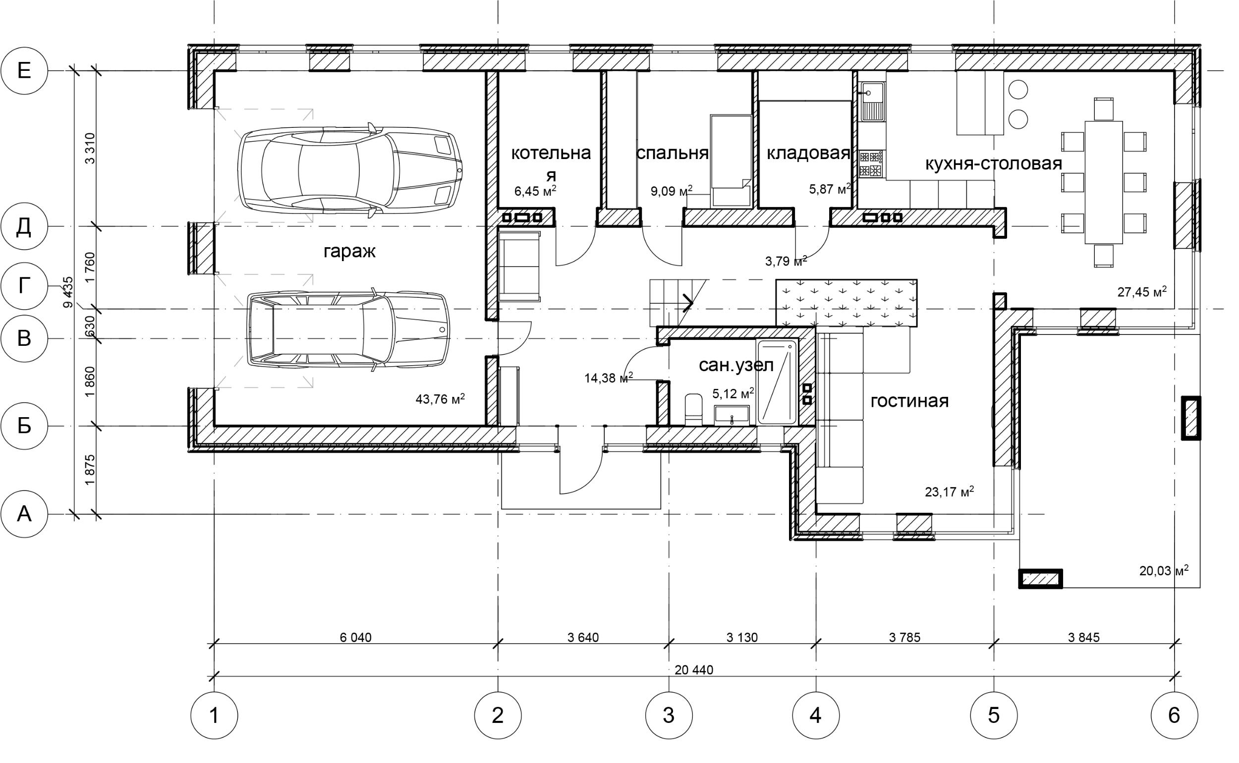
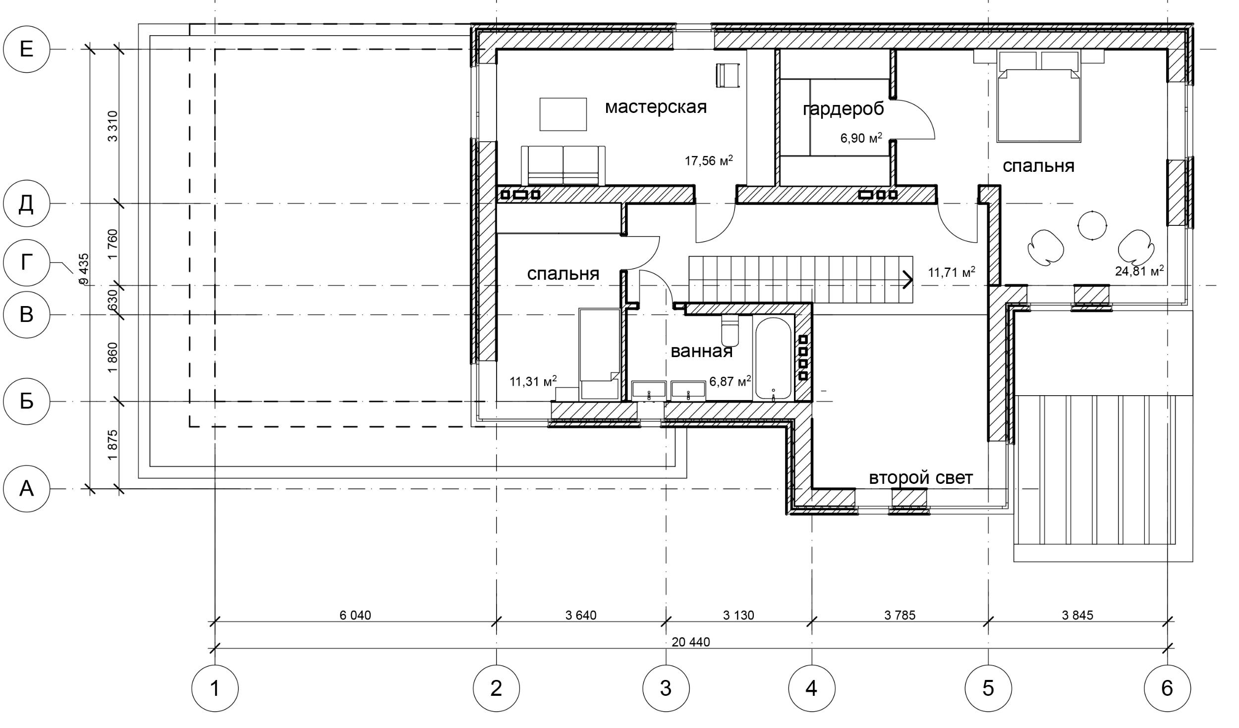
Требовалось спроектировать жилой дом 220 м.кв. с кухней-столовой, 3-мя спальнями, мастерской для семьи из 3-ех человек в Ростове-на-Дону, район Ореховой рощи. У заказчика была сложная планировочная задача, ему хотелось видеть в своём будущем доме увидеть двусветное пространство с открытой лестницей, мастерскую, гараж и несколько спален.
Ввиду ограниченности земельного участка (6-ть соток) и обширности планировочных пожеланий было принято решение спроектировать двухэтажный дом. Для визуального облегчения объемов строения в стены интегрированы большие площади остекления и добавлены сложные по конструкции угловые окна, выходящие на террасу и двор.
В фасадной композиции было использовано сочетание дерева, фасадных панелей, деревянных реек и кирпича (клинкерного или ригельного).
Получился интересный проект с нетривиальными и современными решениями, который в процессе реализации на данный момент.







