- Объект: индивидуальный жилой дом
- Задача: сделать архитектурный проект индивидуального жилого дома
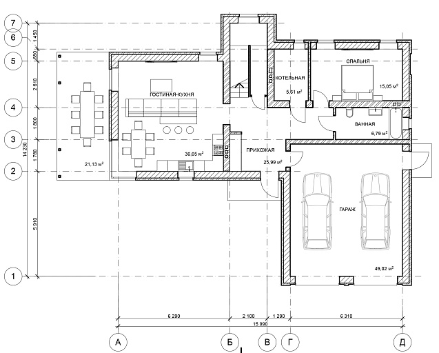
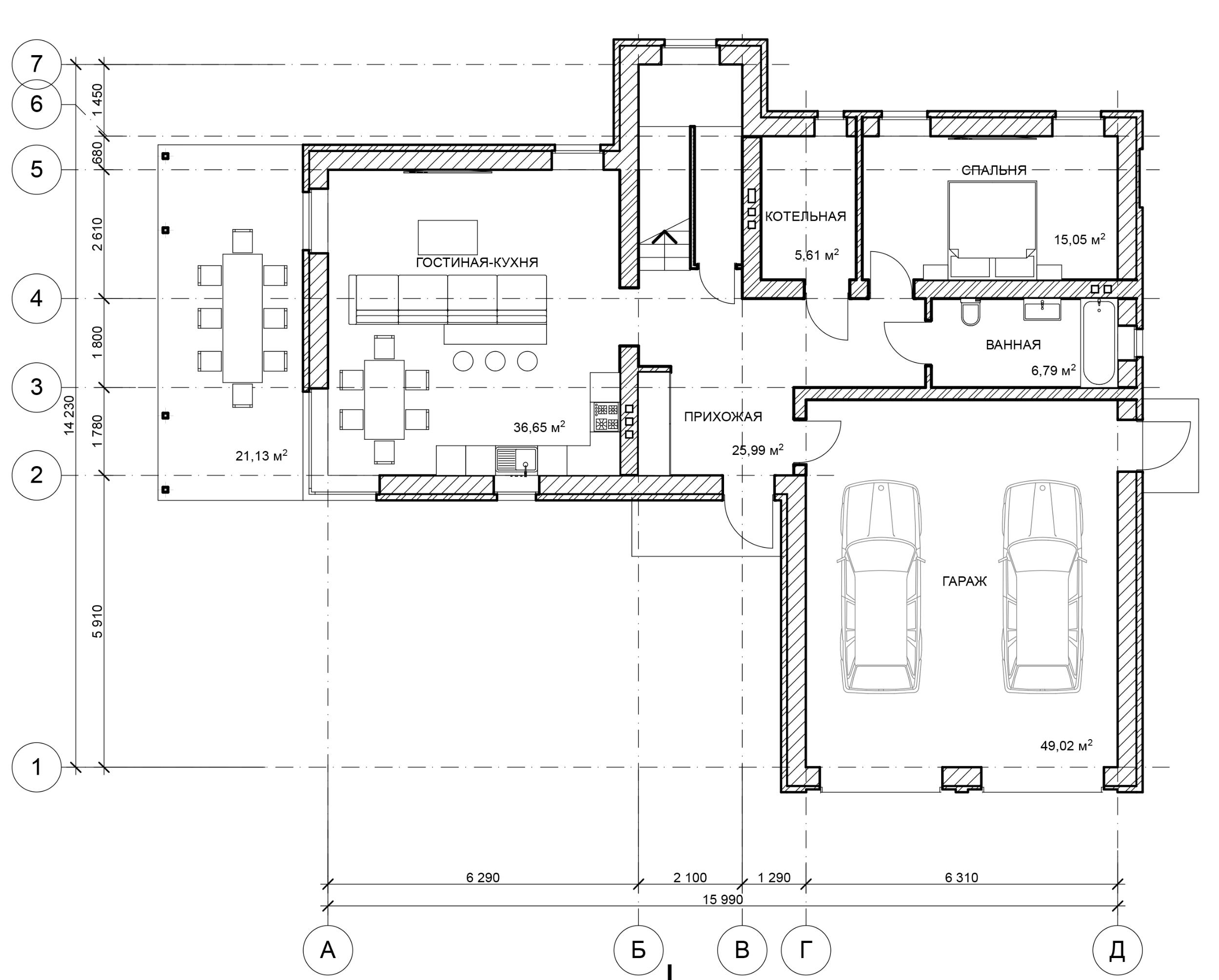
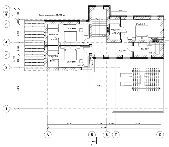
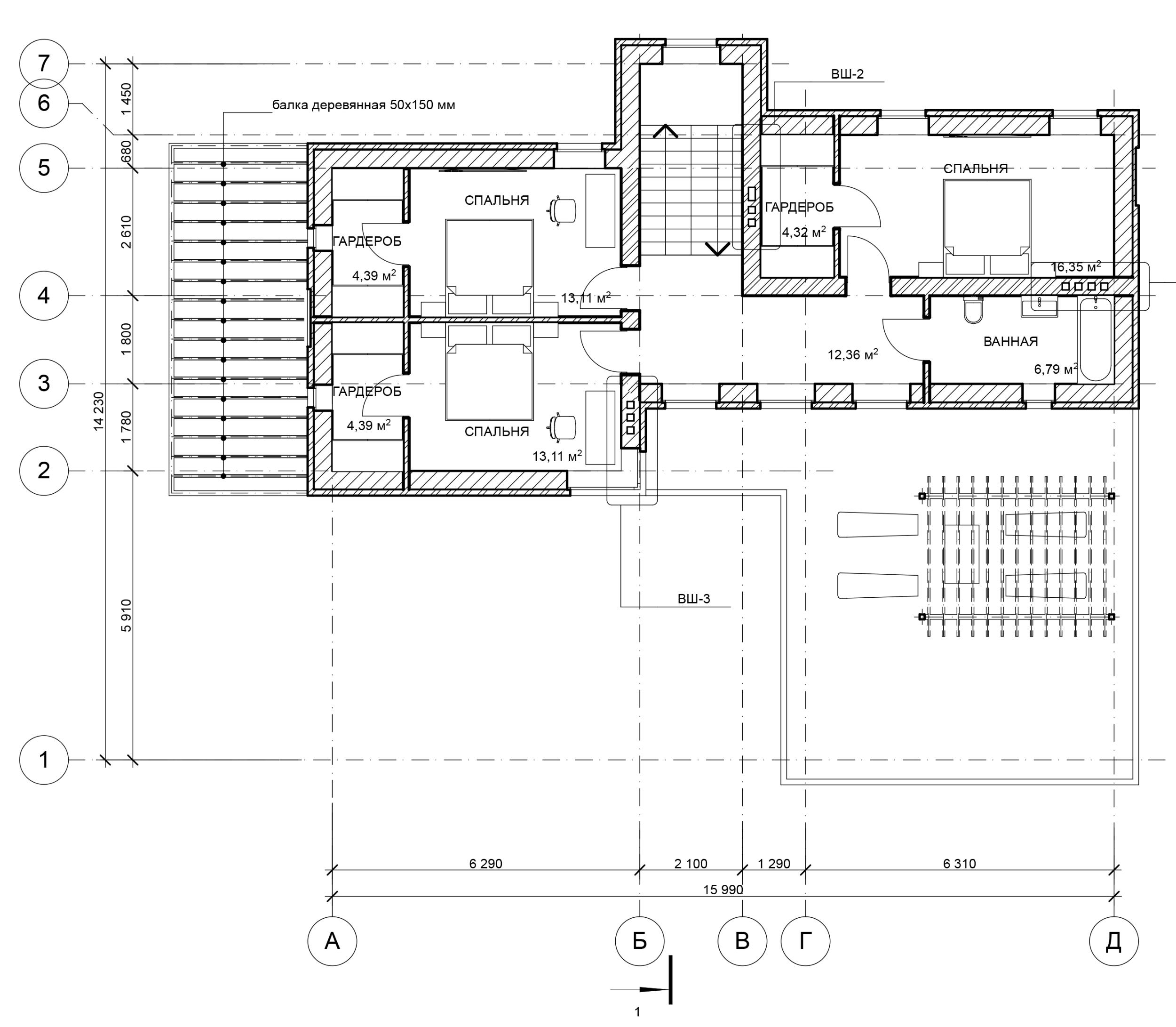
- Площадь: 220 м.кв.
Требовалось спроектировать жилой дом для семьи из 3-ех человек в Ростове-на-Дону, западный район. Особенность проекта состоит в том, что заказчик собирался строить по нему дом на продажу. Он (заказчик) хотел видеть современный стиль архитектуры для того, чтобы попасть в планируемую целевую аудиторию.
Был спроектирован дом средних размеров с четырьмя спальнями и кухней – гостиной, встроенным гаражом и террасой над ним. Дом с плоской крышей из плит.
В качестве материалов отделки использовался кирпич различных фактур и текстур, а также штукатурка для того, чтобы разнообразить объем строения и сделать его композиционно привлекательным.
В итоге получился привлекательный и актуальный дом по канонам современной архитектуры.







