- Объект: квартира
- Задача: сделать полный проект дизайна-интерьера всех помещений
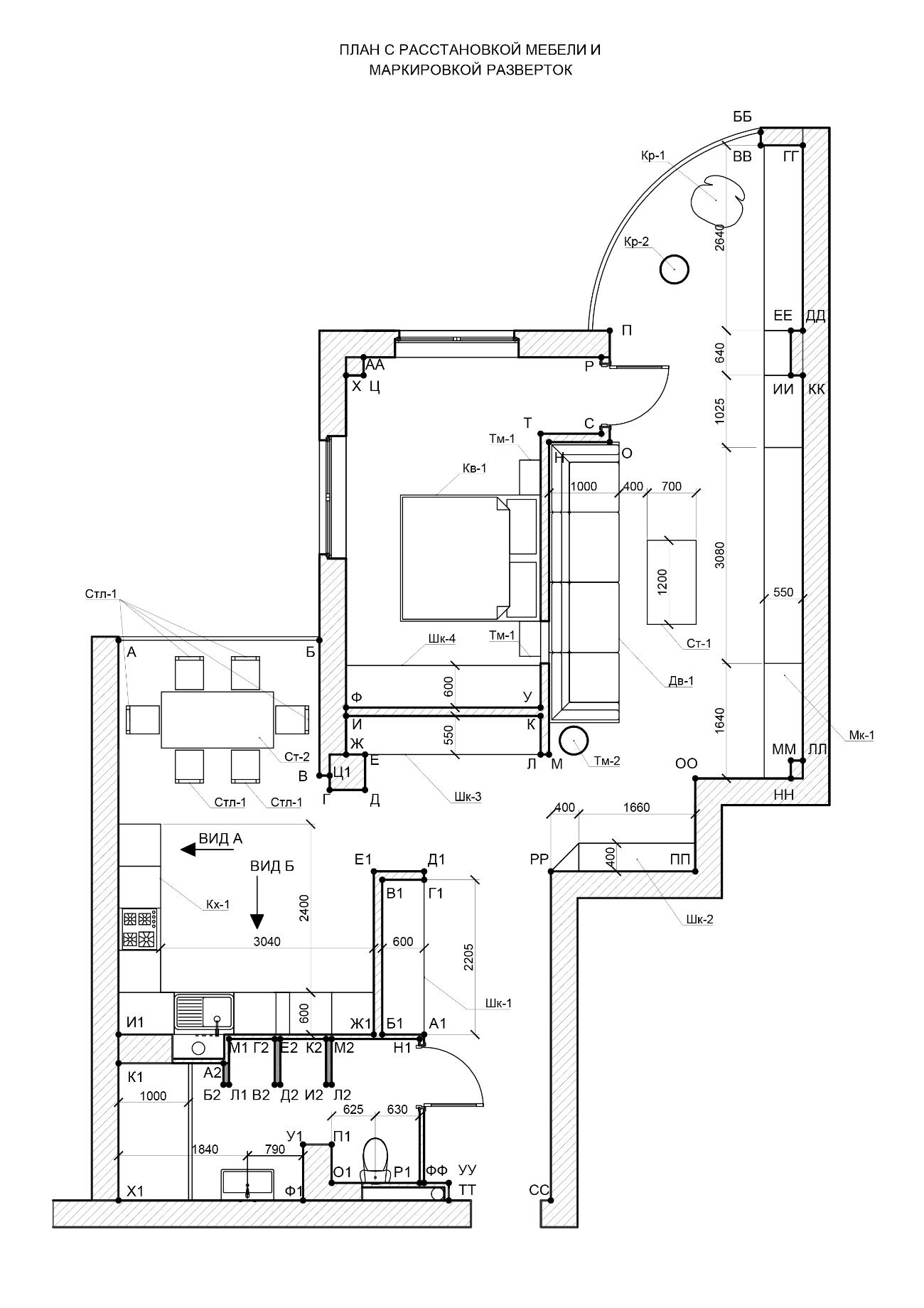
- Площадь: 89 м.кв.
Квартира располагается в Ростове-на-Дону, пр. Кировский, центр. Ставилась задача сделать современный и функциональный интерьер для холостяка. По плану квартира была трёхкомнатной, требовалась её полная перепланировка.
В ходе работы над дизайн-проектом было сделано несколько вариантов планировочного решения. Был выбран заказчиком оригинальный вариант с окном во внутренней перегородке, которая разделяет гостиную и спальню. Все санузлы, а их изначально было два, были объединены в один просторный совмещенный. В перепроектированной планировке осталось две жилые комнаты – гостиная, выполняющая транзитную функцию и спальня.
Ключевой особенностью этого дизайна являются встроенные шкафы, по сути это обширные мебельные композиции, которые помимо размещения вещей выполняют также функцию дополнительной звукоизоляции от соседей.
Получился интересный, современный интерьер внутри композиционно решенных, встроенных мебельных композиций.






